Cum a prins viață un apartament îngust din Tel Aviv
Sunt multe apartamente mici, în blocuri vechi, despre care ai crede inițial că sunt pierdute. Însă experiența noastră din proiectele de amenajări interioare ne-a demonstrat că se pot face foarte multe pentru aceste spații. Iar cea mai bună dovadă este chiar acest proiect din Tel Aviv, situat în centrul orașului, acolo unde apartamentele seamănă uneori cu cele din București. Povestim despre un spațiu lung și îngust amenajat în stil minimalist, aerisit, punctat cu elemente interesante, cum ar fi rafturile metalice și luminile proeminente.
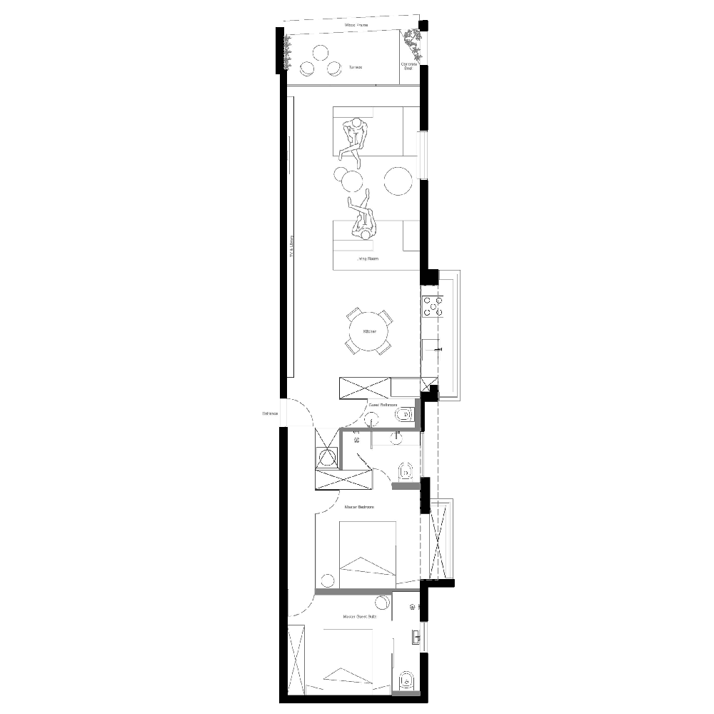
Echipa de arhitecți a început prin împărțirea apartamentului alungit – 19 metri lungime și doar 3,7 metri lățime ca o rețea în care fiecare zonă comunică cu următoarea. Ambele dormitoare – fiecare cu o baie proprie – sunt poziționate în spatele living-ului.
Probabil una dintre cele mai ingenioase idei este crearea rețelei de rafturi subțiri de o lungime de opt metri. Aceasta se întinde de-a lungul întreglui perete din camera de zi. Pentru a continua amenajarea minimalistă, corpurile de iluminat au fost alese, de asemenea, astfel încât să se încadreze în schița proiectului. Designerii au aranjat un cablu de alimentare roșu într-o structură geometrică pe peretele coridorului și în tavan. Acesta se continuă în camera de oaspeți prin lămpi cu pandantive potrivite pe fiecare parte a unuia dintre paturi.
Aparent simplu, întregul apartament este extrem de original, cu elemente contemporane pe care, vom recunoaște, le îndrăgim. Ca să continue întreaga linie a amenajării, podeaua este acoperită cu microtopping gri – o formă modificată de acoperire cu ciment, proiectată pentru a fi utilizată în straturi subțiri. Iar separatoarele camerelor și ușile sunt realizate din sticlă semi-opacă. Ne place mult și finisarea pereților, păstrarea cimentului din construcție combinat cu un alb simplu și cu vopsea decorativă în stil minimalist.
Nu am ales întâmplător să scriem despre acest proiect, tocmai pentru că știm foarte bine că și în București întâlnim des provocări de acest tip. Unele spații sunt amplasate pe lungime sau sunt foarte mici, întotdeauna însă învățăm că indiferent de apartament, rezultatul poate fi spectaculos. Arhitecții și firmele de construcții găsesc, din ce în ce mai des, cele mai bune soluții pentru o renovare contemporană. Iar cel mai bun exemplu este acest apartament dintr-un oraș mult mai aglomerat ca Bucureștiul, oraș care a învățat să dea personalitate chiar și celor mai înguste sau mici spații.
Sursa articolului aici.





